相关:[[我的视觉设计 X 板斧]]
作为体验设计师,一定少不了对细节的观察。根据我的经验,大多数的体验优化都可以归为以下几类。
## 预判用户操作(智能与自动化)
从基础开始
- 自己体验一遍产品的核心流程,一下就能感觉到明显复杂的点。
- 再深入思考尝试从流程上突破,寻找优化的可能性。
[[模式 - 良好默认值]]
[[模式 - 智能菜单]]
### 信息前置与足不出户
#### 案例
1. 日期选择控件,在日期选项上直接附属信息。[[日期选择 Date picker#^ef6cb4]]
2. 宽尔 C 3 全局搜索结果,额外显示产品的关键信息。
## 提供帮助信息
Especially relatively novel interactions and concepts.
## 所见即所得
^d8b566
### 案例
Salesforce: 当用户构建仪表板组件时,他们在添加和更改参数和设置时会看到一个正在进行的预览 (右)(左)。
## 防止错误
- 只要不是非常高频的,大多数情况下,删除都应该有二次确认。
- 甚至可以利用长按来防错。长按进行删除,来源自 ai ppt 工具,Beautiful. Ai 。
- [[我的体验与交互设计 X 板斧#^d8b566|所见即所得]],本质上也是为了防错,提前看到了结果。
- 撤销
- 重要的心理感受,让用户安心,敢于探索和尝试产品,因为有退路。
## 高效· 简化重复工作
### Discord 删除
- 删除一条信息时,会有一个二次确认,防止了误操作
- 同时也给与用户高效的选择,按住 shift 再删除,可以跳过确认。

### 宏
#### 定义
#### 执行
## 帮助用户记忆(识别而不是回忆)
### 历史版本
### 上下文信息
#### 案例
##### 3 D 建筑软件
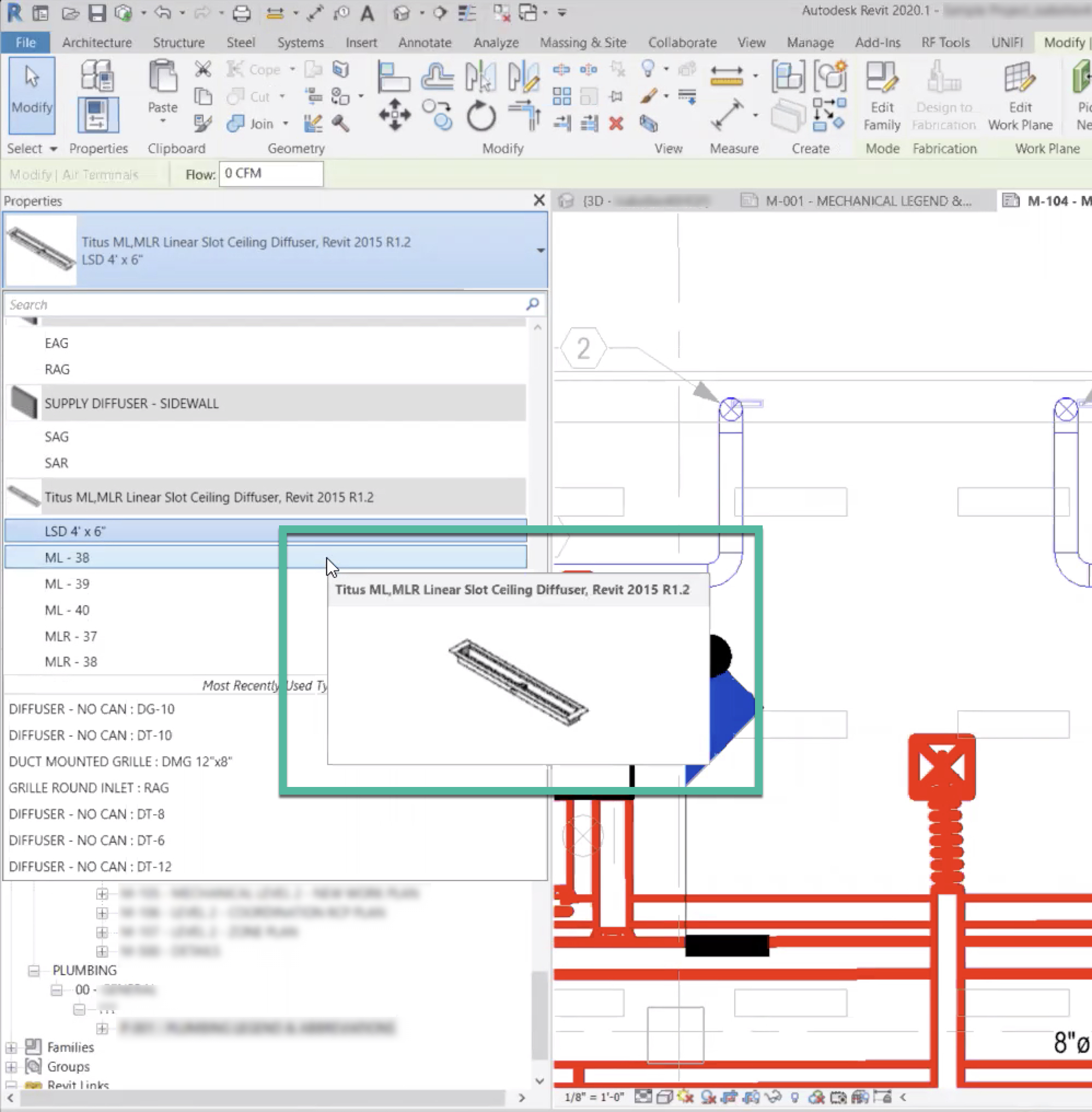
在复杂的应用程序中,往往有太多的数据、选项和信息在争夺空间和注意力,因此在界面中提供识别线索是很有用的。Revit 是一个建筑模型软件,它通过提供 3 D 视觉提醒,提醒用户当用户在左侧面板上悬停在零件编号上时,各种建筑部件看起来是什么样子,从而支持识别而不是召回。在这个例子中,领域专家用户不必回忆零件编号“ ML-38”是什么,而是可以很容易地从图像中识别出零件 (并且还可以参考同一窗口中显示的详细名称)。

##### 宽尔导航的优化
设置导航时,用户可能会忘记了当前设置的是哪一项。
## 流程通用
### 操作前可预知
### 操作中有反馈
### 操作后可撤销
- [[模式 - 多级撤销]]